60
37
25
金地滟瀾山團裝正在進行中……


參加團裝活動享受哪些優惠政策
圖片或者文字排版出來即可
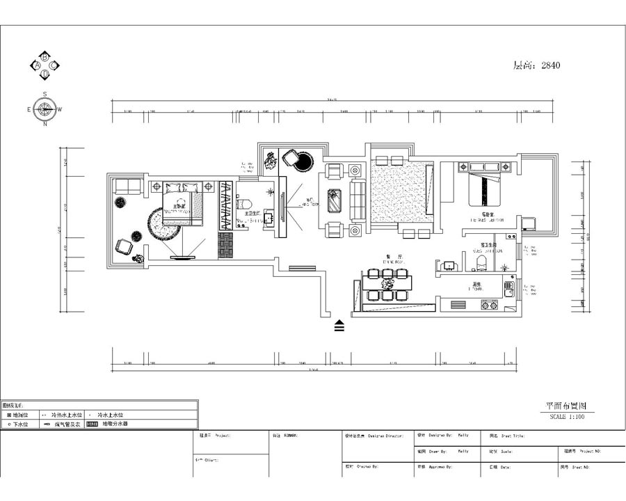
裝修設計的效果圖最好再加上戶型圖








| 團裝小區 |


參加團裝活動享受哪些優惠政策
圖片或者文字排版出來即可
裝修設計的效果圖最好再加上戶型圖







